Klikając "Akceptuję", udzielasz zgody na przetwarzanie danych osobowych dotyczących swoich aktywności w Internecie (np. identyfikatory urządzenia, adres IP). Zgoda jest dobrowolna.

Ta strona wykorzystuje pliki cookie w celu ulepszenia Twojego doświadczenia podczas przeglądania witryny. Wśród nich znajdują się niezbędne pliki cookie, które są przechowywane w Twojej przeglądarce, ponieważ są nieodzowne do działania fundamentalnych funkcji witryny. Dodatkowo, używamy plików cookie stron trzecich, które pomagają nam analizować i zrozumieć, w jaki sposób korzystasz z tej strony internetowej. Te pliki cookie będą zapisywane w Twojej przeglądarce wyłącznie po uzyskaniu Twojej zgody. Masz również możliwość zrezygnowania z tych plików cookie, jednak taka decyzja może wpłynąć na komfort przeglądania strony.

Funkcjonalne (niezbędne)
Analityczne
Marketingowe

Mieszkanie na sprzedaż Tychy, Paprocany

3 pokoje
79.19 m²
8 448,04 zł/m2
1 piętro
ATO-MS-4840
Oblicz ratę kredytu

669 000 zł

Mieszkanie na sprzedaż
Bez prowizji

Szczegóły oferty

Symbol oferty ATO-MS-4840
Powierzchnia 79,19 m²
Powierzchnia użytkowa [m2] 69,04 m²
Liczba pokoi 3
Rodzaj budynku segment
Standard
Opłaty wg liczników CO, gaz, prąd, woda
Piętro 1
Liczba pięter w budynku 1
Garaż brak
Stan lokalu Do wykończenia
Mies. czynsz admin. 1 PLN
Okna nowe PCV
Instalacje nowe
Balkon jest
Rok budowy 2024
Gaz jest
Woda ciepła z pieca CO
Dojazd asfalt
Otoczenie działki zabudowane
Ogrzewanie własne gazowe - kocioł 2-funkcyjny
Usytuowanie trójstronne
Klucze tak
piwnica tak, 1,69 m²

Opis nieruchomości

TYCHY – PAPROCANY
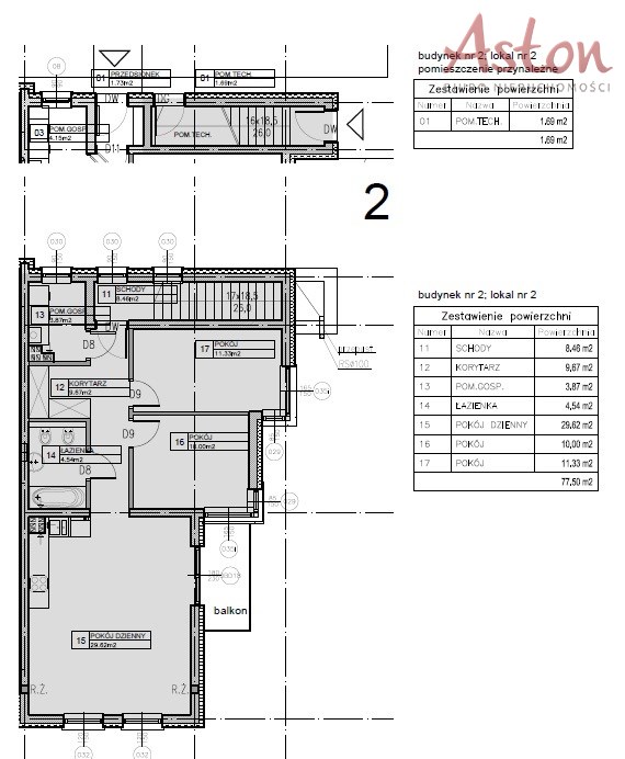
Do sprzedania całkowicie bezczynszowy apartament o pow. 77,5 m2 + komórka 1,69 m2 + 2 miejsca parkingowe. Stan deweloperski - brak PCC. Nieruchomość zlokalizowana w jednej z najbardziej pożądanych dzielnic Tychów – Paprocanach.

Lokal znajduje się na I piętrze w kameralnym budynku, w którym mieszczą się tylko dwa mieszkania. Dużym atutem jest indywidualne wejście do lokalu oraz wejście do komórki lokatorskiej z poziomu parteru.

Powierzchnie:
  • Powierzchnia użytkowa mieszkania: 69,04 m2 plus klatka schodowa 8,46 m2
  • Powierzchnia pomieszczenia gospodarczego: 1,69 m2
  • 2 miejsca parkingowe przy budynku

Układ pomieszczeń:
  • Salon z aneksem kuchennym i wyjściem na balkon  – ekspozycja południowo-wschodnia
  • 2 sypialnie
  • Łazienka z WC
  • Pomieszczenie gospodarcze / pralnia 
  • Garderoba
  • Schody 

Stan deweloperski obejmuje:
  • Ogrzewanie gazowe podłogowe w całym lokalu (możliwość indywidualnego sterowania w pomieszczeniach)
  • Piec gazowy dwufunkcyjny
  • Okna 3-szybowe w kolorze antracyt + ciepłe parapety
  • Antywłamaniowe rolety w oknach, sterowane elektrycznie
  • Tynki na ścianach
  • Wylewki na podłogach
  • Rozprowadzone wszystkie instalacje (wodna, kanalizacyjna, elektryczna, gazowa)
  • Instalacja internetowa + światłowód
  • Budynek ocieplony i otynkowany
  • Instalacja alarmowa
  • Instalacja pod klimatyzację
  • Dwa miejsca parkingowe - w cenie

Lokalizacja:
  • Fantastyczna lokalizacja w otoczeniu zabudowy jednorodzinnej
  • Bardzo szybki wylot na DK 1

Zapraszam na oglądanie. Klucze w biurze.

Zadzwoń: Marzena +48 519 595 674

Udzielamy BEZPŁATNYCH porad w zakresie nieruchomości. Pomagamy również przy uzyskaniu KREDYTU hipotecznego. Niespodzianka dla naszych klientów - rabaty w sklepach budowlanych i projekt łazienki lub kuchni za 1 zł. Zapraszamy do naszych oddziałów:

  • Tychy, ul. Ojca Bocheńskiego 19
  • Katowice, ul. Rolna 46
  • Sosnowiec, ul. Popiełuszki 30 a
Treść niniejszego ogłoszenia nie stanowi oferty handlowej w rozumieniu Kodeksu Cywilnego.

Lokalizacja nieruchomości

Kalkulatory

Kalkulator kredytowy

Wysokość raty

PLN
%

Kalkulator kosztów

Taksa notarialna
(opłata notarialna)

Wniosek o wpis do WKW

VAT od prowizji
agencji nieruchomości

Vat od taksy notarialnej
(opłaty notarialnej)

Prowizja agencji nieruchomości

Wypisy aktu notarialnego

Razem

Uwaga: mogą wystąpić dodatkowe opłaty za założenie księgi wieczystej oraz ustanowienie hipoteki.

PLN
PLN
PLN
PLN
PLN
%
PLN

Proszę wprowadzić poprawne imię i nazwisko
Proszę wprowadzić poprawny numer telefonu
Proszę wprowadzić poprawny adres e-mail
Proszę zaznaczyć wymagane zgody
Rozwiąż równanie:
25 8
Niepoprawny wynik